GENOVIA板橋本町green wall

8.7万円 管理/共益費 10,000円

東京都板橋区富士見町

都営三田線「板橋本町」駅徒歩9分

東武東上線「中板橋」駅徒歩12分

都営三田線「本蓮沼」駅徒歩15分

価格
8.7万円 管理/共益費 10,000円
間取り/面積
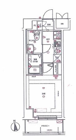
1K/25.92㎡
所在地
東京都板橋区富士見町
築年
2011年10月(築14年)
駐車
-
交通

都営三田線板橋本町」駅 徒歩9分

東武東上線中板橋」駅 徒歩12分

都営三田線本蓮沼」駅 徒歩15分

GENOVIA板橋本町green wallの基本情報

物件名
GENOVIA板橋本町green wall
価格
8.7万円
管理/共益費
10,000円
築年月
2011年10月(築14年)
総戸数
-
所在地
東京都板橋区富士見町
交通

都営三田線板橋本町」駅 徒歩9分

東武東上線中板橋」駅 徒歩12分

都営三田線本蓮沼」駅 徒歩15分

GENOVIA板橋本町green wallの詳細情報

設備条件
  • エレベーター
  • 駐輪場
  • CATV
  • 光ファイバー
  • オートロック
  • 宅配ボックス
  • 防犯カメラ
設備(その他)
    -
駐車場/月額
-/-
用途地域
-
戸数
- / -
取引態様
仲介
備考
幅広い層に好評な、駅から徒歩9分に立地する物件です。こちらの物件はマンションです。3駅以上利用可能なこちらの物件は利便性が高く、行動範囲も広がります。当社スタッフが地域の賃貸情報をご提供いたします。お客様のこだわりやご要望などございましたら、お気軽に当社へお問い合わせ下さい。

GENOVIA板橋本町green wallのコメント(おすすめポイント)

当店では、初期費用の分割、クレジットカード決済、家賃や入居日の交渉、インターネット非公開物件の情報のご紹介等どんな事でも対応致します!また、掲載物件の他にも多数物件をご紹介しております!

GENOVIA板橋本町green wallで募集中の物件

  1. 2階

    7.84坪 (25.92㎡)

    8.7万円(11096.94円/坪)

近隣の物件

  1. 板橋区中板橋

    1K (19.09㎡)

    8.2万円

  2. 板橋区中板橋

    1LDK (54.78㎡)

    14万円

  3. 板橋区徳丸1丁目

    1K (18.21㎡)

    6.6万円

  4. 板橋区向原2丁目

    1R (25.82㎡)

    7.2万円

GENOVIA板橋本町green wall

お気軽にお問い合わせください

無料お問い合わせ

株式会社REPLAY本店

03-5962-0400

10:00~19:00

(休:水曜日)